
Flanged End Pressure Seal Gate Valve 900Lb 2500Lb
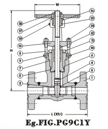
Standard Material Specifications
|
NO. |
Part Name |
CS to ASTM |
AS to ASTM |
SS to ASTM |
|
Type A105 |
Type F22 |
Type F304(L) |
Type F316(L) |
|
1 |
Body |
A105 |
A182 F22 |
A182 F304(L) |
A182 F316(L) |
|
2 |
Seat |
A276 420 |
A276 304 |
A276 304(L) |
A276 316(L) |
|
3 |
Wedge |
A276 410 & 430 |
a182 F304 |
A182 F304(L) |
A182 F316(L) |
|
4 |
Stem |
A182 F6 |
A182 F304 |
A182 F304(L) |
A182 F316(L) |
|
5 |
Pressure Seat |
A105 |
A182 F304 |
A182 F304(L) |
F316(L) |
|
6 |
Pressure Ring |
A276 304L |
A276 316L |
|
7 |
Bonnet |
A105 |
A182 F22 |
A182 F304(L) |
A182 F316(L) |
|
8 |
Gland Eyebolt |
A193 B7 |
A193 B16 |
A193 B8 |
A193 B8M |
|
9 |
Pin |
A276 420 |
A182 F304 |
|
10 |
Stem Packing |
Flexible Graphite |
PTFE |
|
11 |
P.S.Lock Nut |
A194 2H |
A194 4 |
A194 8 |
A194 8M |
|
12 |
Gland |
A276 F420 |
A182 F304 |
|
13 |
Gland Flange |
A216 WCB |
A351 CF8 |
|
14 |
Nut |
A194 2H |
A194 4 |
A194 8 |
A194 8M |
|
15 |
Yoke Nut |
A276-410 |
|
16 |
Retaining Nut |
A194 2H |
A194 4 |
A194 8 |
A194 8M |
|
17 |
Handwheel |
A197 |
|
18 |
H.W.Lock Nut |
A194 2H |
A194 4 |
A194 8 |
A194 8M |
|
19 |
Oil Cup |
Brass |
|
Suitable Medium |
W.O.G.etc |
W.O.G.etc |
HNO3,CH3OOH etc |
|
Suitable Temperature |
-29 425 |
-29 550 |
-29 180 |
Note: Other materials are available upon request.
Dimensions (mm) and Weights (Kg)
|
NPS |
1/2 |
3/4 |
1 |
1/4 |
1-1/2 |
2 |
|
L(RTJ) |
900Lb 1500Lb |
216 |
229 |
254 |
279 |
305 |
368 |
|
2500Lb |
264 |
273 |
308 |
349 |
384 |
451 |
|
H(OPEN) |
900Lb 150Lb |
216 |
250 |
270 |
320 |
350 |
445 |
|
2500Lb |
321 |
321 |
321 |
373 |
406 |
495 |
|
W |
160 |
160 |
180 |
200 |
250 |
280 |
|
Weights |
900Lb 1500Lb |
19.6 |
21.5 |
25.7 |
37.8 |
48.5 |
99.8 |
|
2500Lb |
21.5 |
24.7 |
30.4 |
48.1 |
58.1 |
130.0 | |